1205 Angela St  Chubbuck, Idaho

$609,900   •   Ranch   •   6 bed, 3 bath   •   3,026 sq ft   •   0.19 acres
Add to FavoritesAdded

Loan Payment

%
years
$
$
 
Advanced  |  Reset

 


Please verify location. A map has been generated based on the address for your convenience, but it has not been verified for accuracy.

 

MLS #582300

Asking Price
$609,900
Status
ACTIVE
Location
Chubbuck & North
Style
Ranch
Year Built
2022
Floor Area
3,026 sq ft
Rooms
6 bed, 3 bath
Garage
3-car attached
Acreage
0.19 acres
Days on Market
2 Days

 

Property Description

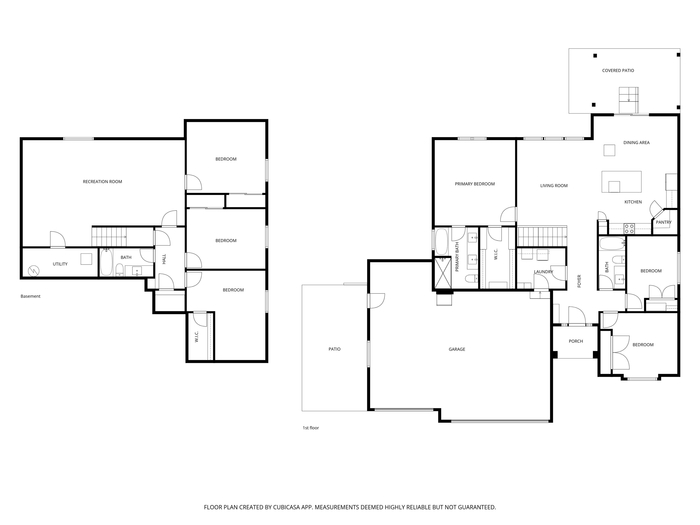
Welcome to this charming family home, offering a perfect blend of comfort and functionality. As you step in you will find LVP flooring that extends throughout the main living areas, providing a durable base, A bright living room featuring large windows that invite natural sunshine, creating a warm and welcoming atmosphere that flows seamlessly into the kitchen. The kitchen is spacious and functional, with a wonderful dining area, a large single bay drop sink, plus two pantries for exceptional storage. Retreat to the master bedroom with tall cathedral ceilings, a coffered ceiling, large windows and a walk in closet. Master bath is equally impressive, offering a large tiled shower, a separate soaking tub, dual sinks, and ample vanity space. Check out the extra bedrooms- accents and shelving that make them perfect for children, guests, or a home office. The laundry room offers extra cabinet storage, keeping things neat and organized! A finished basement is an entertainer's dream, featuring a spacious family room and three additional bedrooms, perfect for hosting guests or creating private spaces for family members. The large 3-car garage is complete with built-in storage shelves and a convenient bench! Step outside and enjoy the amazing Idaho outdoor living. The backyard is fully fenced and includes a slide and swing set! The extra-large concrete patio features an adjustable louvered patio cover, perfect for enjoying the outdoors no matter the weather. The property also boasts an RV pad for convenient recreational vehicle storage, an additional concrete pad in the back yard for storing toys or a shed! It checks all the boxes!

 

Property Features

Levels

Main Level
1519 sq. ft.
3 Bedrooms, 2 Bathrooms, Living Room, Kitchen, Laundry Room
Basement
1507 sq. ft.
3 Bedrooms, 1 Bathroom, Family Room

Schools

Elementary School:  Chubbuck
Middle School:  Hawthorne
High School:  Pocatello

Interior

Interior Features:  Breaker Electric Circuits, Walk-In Closet(s)
Appliances Included:  Dishwasher, Microwave, Range/Oven, Refrigerator, Water Heater-Gas, Water Softener-Owned
Featured Rooms:  Main Floor Primary Bdrm, Mud Room, Pantry, Primary Bath
Laundry Location:  Main Level

Exterior

Exterior Finish:  Vinyl
Exterior Accent:  Stone
Exterior Features:  RV Parking
Roof:  Architectural
Window Panes: 
Window Frames: 
Patio/Deck:  Covered Patio, One
Driveway:  Concrete

Utilities

Heat Source:  Gas
Heat Type:  Forced Air
Air Conditioning:  Central
Electricity Provider:  Idaho Power
Average Electric: 
Avg Non-Electric Heat: 
Avg Water/Sewer/Gas: 

Construction

Year Built:  2022
Builder: 
Construction Status:  Existing
Construction Style:  Frame
Foundation:  Concrete
% Basement Finished: 
Basement Features:  Egress Windows, Full Basement
Fixer Upper?  No

Lot

Acreage:  0.19 acres
Lot Dimensions: 
Location:  Near Park, Near Schools
Topography/Setting:  Flat
Fence:  Vinyl
Landscaping:  Established Lawn, Sprinkler System-Full, Sprinkler-Auto
Irrigation:  Other
Sewer Type:  City Sewer
Subdivision:  Bilyeu Estates
Parcel: 
Zoning–City:  Residential
Zoning–County:  Residential Suburban

Financial

Taxes:  $3,062.00
Homeowner's Exemption: 
Assoc Fee Includes: 
Terms:  Cash, Conventional, FHA, VA
Agent Owned? 

 

Request a Showing

 

Disclaimer

This IDX listing is provided courtesy of Keller Williams Realty East Idaho for personal, non-commercial use only. Information is deemed reliable but is not guaranteed to be accurate.