3098 Dartagnan  Pocatello, Idaho

$519,900   •   Ranch   •   4 bed, 3 bath   •   2,861 sq ft   •   0.21 acres
Add to FavoritesAdded

Loan Payment

%
years
$
$
 
Advanced  |  Reset

 


Please verify location. A map has been generated based on the address for your convenience, but it has not been verified for accuracy.

 

MLS #581952

Asking Price
$519,900
Status
ACTIVE
Location
South Pocatello
Style
Ranch
Year Built
2019
Floor Area
2,861 sq ft
Rooms
4 bed, 3 bath
Garage
3-car attached
Acreage
0.21 acres
Days on Market
3 Days

 

Property Description

This house has so much curb appeal you LOVE the home the second you see it! The beautiful and welcoming open concept will having you feeling right at home the minute you walk in. The three car garage will not leave you wanting!! The stamped concrete lets you know how much attention to detail the builder put into this home. Did you say you need more parking??? Well, not only do you have the garage and the driveway, but you also have an RV pad the extends to the back yard and the corner lot offers plenty of frontage to park for visitors!!! The back concrete patio will have you envisioning entertaining in the backyard and hosting all the parties. The tall ceilings in the basement are fantastic. The cold storage is a bonus you didn't know you needed. The laundry room is massive. Every bathroom has granite countertops and matching tile. The sellers are sad to leave this home but it is ready for welcome the new owners. Don't delay. Call your agent NOW!

 

Property Features

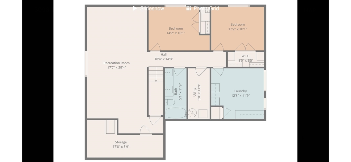
Levels

Main Level
1424 sq. ft.
2 Bedrooms, 2 Bathrooms
Basement
1437 sq. ft.
2 Bedrooms, 1 Bathroom

Schools

Elementary School:  Washington
Middle School:  Franklin
High School:  Century

Interior

Interior Features: 
Appliances Included:  Dishwasher, Microwave, Range/Oven, Refrigerator
Featured Rooms:  Main Floor Family Room, Main Floor Primary Bdrm
Laundry Location:  Basement

Exterior

Exterior Finish:  Vinyl
Exterior Accent:  Stone
Exterior Features:  RV Parking
Roof:  Architectural
Window Panes: 
Window Frames: 
Patio/Deck:  Covered Porch, One, Open Patio
Driveway:  Concrete

Utilities

Heat Source:  Gas
Heat Type:  Forced Air
Air Conditioning:  Central
Electricity Provider:  Idaho Power
Average Electric: 
Avg Non-Electric Heat: 
Avg Water/Sewer/Gas: 

Construction

Year Built:  2019
Builder: 
Construction Status:  Existing
Construction Style:  Frame
Foundation:  Concrete
% Basement Finished: 
Basement Features:  Basement Fully Finished, Egress Windows, Full Basement
Fixer Upper?  No

Lot

Acreage:  0.21 acres
Lot Dimensions: 
Location: 
Topography/Setting: 
Fence:  Full, Other, Vinyl
Landscaping:  Sprinkler System-Full, Sprinkler-Auto
Irrigation: 
Sewer Type:  City Sewer
Subdivision:  Wildlife Ridge Estates
Parcel: 
Zoning–City:  Residential
Zoning–County:  Residential Rural

Financial

Taxes:  $4,061.00
Homeowner's Exemption: 
Assoc Fee Includes: 
Terms:  Cash, Conventional, FHA, VA
Agent Owned? 

 

Request a Showing

 

Disclaimer

This IDX listing is provided courtesy of ReMax Country Real Estate for personal, non-commercial use only. Information is deemed reliable but is not guaranteed to be accurate.