855 E Walnut  Pocatello, Idaho

$340,000   •   4 bed, 2 bath   •   1,974 sq ft   •   0.10 acres
Add to FavoritesAdded

Loan Payment

%
years
$
$
 
Advanced  |  Reset

 


Please verify location. A map has been generated based on the address for your convenience, but it has not been verified for accuracy.

 

MLS #581343

Asking Price
$340,000
Status
ACTIVE
Location
North Pocatello
Style
Other
Year Built
2002
Floor Area
1,974 sq ft
Rooms
4 bed, 2 bath
Garage
1-car attached
Acreage
0.10 acres
Days on Market
15 Days

 

Property Description

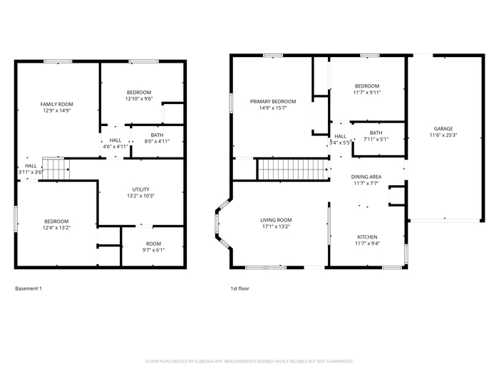
Well-maintained corner-lot twin home just a few blocks south of Alameda, offering space, functionality, and convenience. Built in 2002, this 1,925 sq ft home features a flexible and functional floor plan with two bedrooms and a full bathroom on the main level, plus two additional bedrooms and another full bathroom in the finished basement—ideal for guests, family, or a home office setup. The finished basement also includes a generous laundry area with an adjacent storage room, providing ample space for organization. Additional highlights include a new roof installed in 2022, automatic sprinkler system, and a water softener, adding long-term value and everyday comfort. A one-car garage and corner lot enhance convenience and curb appeal. With a desirable location close to shopping, dining, and major routes, this home offers a great balance of comfort and practicality. Offered at $340,000.

 

Property Features

Levels

Main Level
994 sq. ft.
2 Bedrooms, 1 Bathroom
Basement
980 sq. ft.
2 Bedrooms, 1 Bathroom, Family Room, Laundry Room

Schools

Elementary School:  Lewis & Clark
Middle School:  Alameda
High School:  Century

Interior

Interior Features: 
Appliances Included:  Dishwasher, Microwave, Range/Oven, Refrigerator, Water Heater-Gas, Water Softener-Owned
Featured Rooms: 
Laundry Location:  Basement

Exterior

Exterior Finish:  Vinyl
Exterior Accent: 
Exterior Features: 
Roof:  Architectural
Window Panes: 
Window Frames: 
Patio/Deck: 
Driveway:  Concrete

Utilities

Heat Source:  Gas
Heat Type:  Forced Air
Air Conditioning:  Central
Electricity Provider: 
Average Electric: 
Avg Non-Electric Heat: 
Avg Water/Sewer/Gas: 

Construction

Year Built:  2002
Builder: 
Construction Status:  Existing
Construction Style:  Frame
Foundation:  Concrete
% Basement Finished: 
Basement Features:  Basement Fully Finished
Fixer Upper?  No

Lot

Acreage:  0.10 acres
Lot Dimensions: 
Location: 
Topography/Setting: 
Fence:  Chain Link
Landscaping:  Established Lawn, Sprinkler-Auto
Irrigation: 
Sewer Type:  City Sewer
Subdivision:  Fairview Townsite
Parcel: 
Zoning–City:  Residential
Zoning–County:  Residential Suburban

Financial

Taxes:  $1,617.00
Homeowner's Exemption: 
Assoc Fee Includes: 
Terms:  Cash, Conventional, FHA, IFHA
Agent Owned? 

 

Request a Showing

 

Disclaimer

This IDX listing is provided courtesy of Real Estate Two70 for personal, non-commercial use only. Information is deemed reliable but is not guaranteed to be accurate.