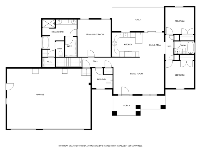
Craftsman style home in Groveland with a country front porch on 1 acre! You will love this great floor plan- Inviting living room with windows that brighten the home, Beautiful kitchen with ample custom alder cabinets, pull out draws and granite counter tops! Split bedrooms-The master bedroom is one to be desired! TWO walk-in closets, dual sinks with a large vanity, extra cabinets, a walk-in shower, soaking tub and private commode! Covered patio out back to enjoy the evenings after a long day! Fully fenced yard on one acre with irrigation rights, sprinkler system, drip system and raised garden beds! The basement is finished with a gas fireplace to keep you nice and cozy while hanging in the family room. Nice large office area/craft room, a storage room and two bedrooms with walk in closets! Don't miss the triple car garage that has everything that you want: shelving from floor to ceiling, two electric heaters, extra lighting, fully insulated, and sheet rocked. Makes a great workshop! This one checks all the boxes!